Die tragende Konstruktion wird in Holzrahmenbauweise auf einem Betonfundament erstellt. Die Außenwände sind mind. 30 cm dick und werden aus Leichtlehm erstellt.
Dies bietet alle Vorzüge eines Lehmhauses und gleichzeitig einen hohen Wärme- und Schalldämmwert. Eine zusätzliche Auβen-Wärmedämmung aus Holzwolle-Leichtbauplatten erhöht den Wärmeschutz und bildet die Basis für den Kalk-Außenputz. Das Haus sieht also aus wie ein „normales“ Steinhaus.
Von innen wird das Haus für ein optimales Raumklima mit Lehmputz verputzt.
Das Dach ist ein massives Holzdach mit Sichtschalung, Zellulosedämmung und Tondachziegeln.
Der U-Wert des so gebauten Hauses liegt bei 0,30 W/km2.
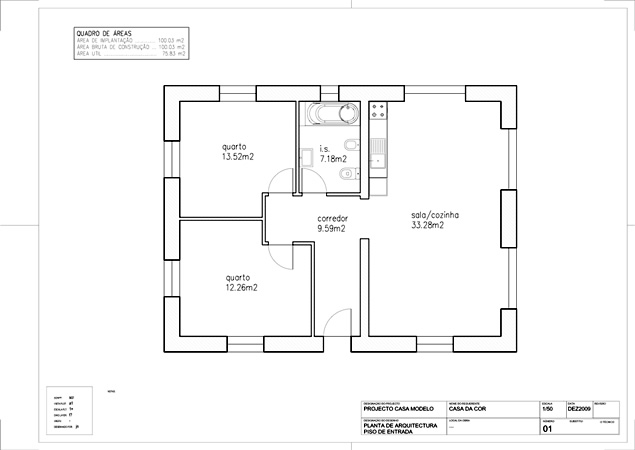
Die Innenaufteilung des rechteckigen Hauses und die Innenausstattung sind variabel. Änderungen am rechteckigen Grundriss sind ohne Weiteres möglich, führen aber zu höheren Kosten.
Die Warmwasseraufbreitung erfolgt über eine Thermosyphonanlage. Eine Heizung ist in der Basisversion nicht inbegriffen, kann aber – egal ob Grundofen, offener Kamin oder Zentralheizung - entsprechend des gewünschten Systems vorbereitet bzw. installiert werden.
Unser Basis-Grundriss des Hauses ist so einfach wie möglich gehalten, um Kosten zu sparen.

Die Planung ist in jeder Hinsicht variabel, die Kosten können sich durch Grundrissänderung geringfügig ändern.
Mit Leichtlehm verfüllte Holzrahmenkonstruktion
zum Vergrößern bitte das Bild klicken
zum Download als pdf Bild 1 hier klicken, Bild 2 hier klicken)
Die mit Leichtlehm verfüllte Holzrahmenkonstruktion verknüpft in besonders vorteilhafter Weise Massivhaus-Eigenschaften mit der feuchtigkeitskompensierenden Wirkung von Lehmhäusern - ideal für den sommerlichen Wärmeschutz und die winterlichen Feuchtigkeitsprobleme an der Algarve.
Unser Angebot bietet Ihnen gesundes Wohnen zu einem besonders attraktiven Preis. Mehr als 20 Jahre Erfahrung in Sanierung und ökologischem Bauen und die Zusammenarbeit mit qualifizierten Architekten und Ingenieuren haben dieses Projekt möglich gemacht.
Gerne beraten wir Sie unverbindlich entsprechend Ihrer individuellen Wünsche.
Ein Überblick über die Vorteile:
Technisches Datenblatt
zum Vergrößern bitte das Bild klicken
zum Download als pdf bitte hier klicken
Die Wärmekennzahlen verstehen sich ohne Berücksichtigung der Wärmebrücken.